Création d'un cuisine arrière 

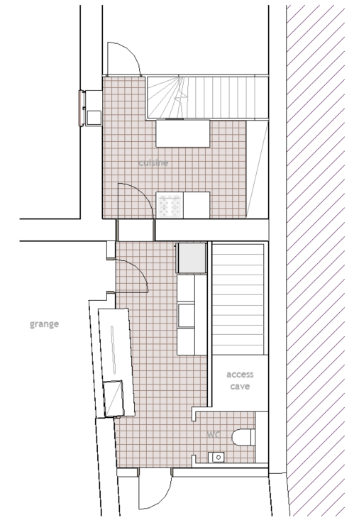
EXISTANT

Avec son grand jardin et son potager, cette maison de campagne nécessite davantage d’espace pour préparer les repas familiaux et conserver la récolte annuelle de fruits et légumes.

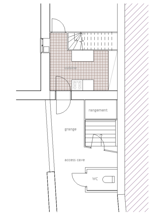
Le projet consiste en la création d’une arrière-cuisine au sein de la grange, dans le prolongement direct de la cuisine existante, aujourd’hui jugée trop étroite.

 

L’intervention prévoit l’agrandissement de l’espace en s’étendant sur la zone de l’escalier de la cave, offrant ainsi un volume généreux.

Les poutres existantes seront conservées et mises en valeur afin de préserver le caractère authentique du lieu.

 

L’arrière-cuisine intégrera un plan de travail spacieux, idéal pour la pâtisserie, ainsi qu’un espace dédié à la conservation des récoltes du jardin.

 

Des rangements optimisés et un éclairage soigneusement étudié au-dessus des zones de travail garantiront un confort d’usage optimal et des conditions idéales pour créer.

APRES TRAVAUX